APPARTAMENTO CON INGRESSO INDIPENDENTE E GIARDINO, SOGGIORNO, CUCINA ABITABILE E DUE CAMERE DA LETTO. - rif. IM-10283

€ 198.000

Cervia - Villa Inferno (RA)

Panoramica 360°

Caratteristiche immobile:

3 locali
2 camere
105 MQ
1 bagni
Garage: SI
Esposizione: Est Sud Ovest
Riscaldamento: Autonomo

Altre caratteristiche:

Caratteristiche immobile

Camere: 2
Bagni: 1
Riscaldamento: Autonomo
Tipo Riscaldamento: Radiatori
Combustibile Riscald.: GAS
76 MQ
105 MQ comm.
Stato immobile: Buono
Giardino: Privato
Posto auto: SI
Garage: SI
Classe ener.: In fase di definizione
Locali: 3
Balcone: SI, 2 balconi
Terrazzo: SI
Arredamento: Parziale
Condizionatore: SI
Piano: Primo
Totale piani: 3
Tot. unità presenti: 7
Anno costr.: 2001
Cucina: Abitabile
Spese condominiali: 30 €
Spese rata: Mensile
Esposizione: Est Sud Ovest
Porta Blindata
Fibra Ottica

Descrizione

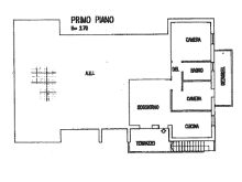
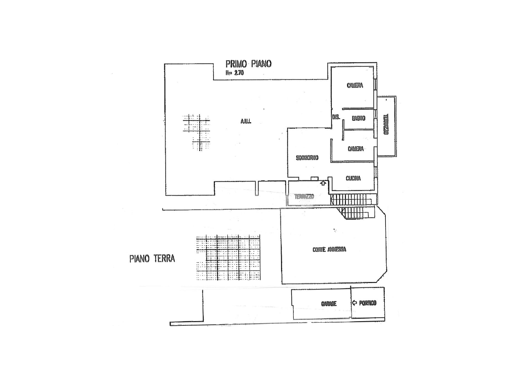
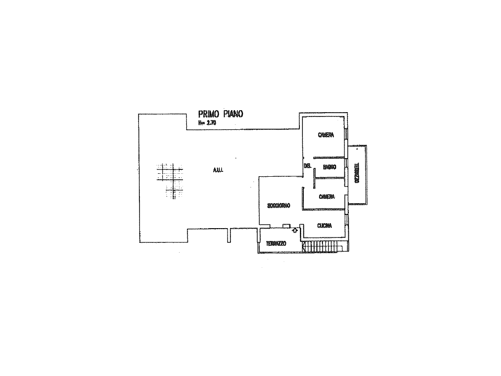
CERVIA–VILLA INFERNO: in zona tranquilla e residenziale, a soli 4 km da Cervia, proponiamo in vendita un appartamento al primo piano con ingresso indipendente dal giardino privato al piano terra, inserito in un contesto di sole sette unità abitative e con basse spese condominiali.

L’immobile dispone di un ampio giardino esclusivo, ideale per chi desidera vivere e godere degli spazi esterni.

Dal giardino, salendo la scala esterna, si accede a un grande terrazzo abitabile, perfetto per pranzi e cene all’aperto. Entrando nell’abitazione troviamo il soggiorno con cucina a vista separata, disimpegno, una camera da letto matrimoniale, una camera singola con accesso a un ulteriore balcone, e un comodo bagno finestrato con box doccia.

Completano la proprietà un garage al piano terra e un portico privato antistante, utilizzabile come posto auto coperto. All’interno della corte e del giardino è inoltre possibile parcheggiare un secondo veicolo.

L’immobile è dotato di cappotto esterno ed è stato recentemente riammodernato con: porte interne nuove, impianto di climatizzazione con split inverter, caldaia a condensazione, zanzariere.

Soluzione ideale come prima casa, per chi cerca indipendenza e tranquillità, zona residenziale e tranquilla,

Contattaci subito per avere maggiori informazioni o per fissare un appuntamento: cell. 3408573560, ufficio 0547610063, mail info@agenziacasafacile.it - m.giannini@agenziacasafacile.it

Dove si trova?

L'agenzia non ha ancora indicato la localizzazione dell'immobile, contattala per tutti i dettagli.

Inviaci la tua richiesta

Invia una richiesta all'agenzia

Agente di riferimento

Marco Giannini

IM-10283

Autorizzo il trattamento dei miei dati personali in base art. 13 del reg. eu 679/2016
[X]
Per ulteriori informazioni consulta la nostra Cookie Policy